Escuela de Ingeniería de Leicester
Facultad de Ingeniería, Universidad de Leicester
Arquitecto: James Stirling y James Gowan
Diseñado en: 1959-1963
Ubicación: Leicester, Inglaterra, Reino Unido
Esto es el reverso del principio modular según el cual un sistema construido es un compromiso entre varias funciones diferentes, con lo cual ninguna función es servida de un modo óptimo. Esta actitud ad hoc ante la estructura, diferencia también a Stirling de aquellos que ven las megaestructuras como solución a las obras en gran escala, y es posible que el método diversificado y no simplista de Stirling pueda alejar a los diseñadores de los superedificios de las simplificaciones excesivas que sus proyectos manifiestan tan a menudo. Esta actitud hacia la estructura requiere la colaboración de un ingeniero con la mente abierta. Stirling siempre ha trabajado en estrecha colaboración con Frank Newby, de Felix J. Samuely and Partners, quien calculó las cerchas inclinadas de los talleres de maquinaria, estructura que se incorporó a la concepción del exterior del edificio. Aunque la estructura no se expresa de una manera literal, su forma es identificable en el modo como la superficie dérmica es «estirada» encima del esqueleto.
La nitidez de la tolerancia con que Stirling concibió el grupo de torres de Leicester queda ilustrada por su observación de que:
«Toda forma construida tiene un peso y unas propiedades de estabilidad o inestabilidad que dependen de su forma, y es necesario hacer una agrupación de funciones que sea inherentemente estable. En el edificio de Ingeniería, el peso de las torres de encima compensa el voladizo de las salas de conferencias o, por decirlo de otro modo, la magnitud del voladizo viene dictada por el peso que gravita encima; si se eliminase la planta superior, el edificio se hundiría. Sin duda, existe una cualidad arquitectónica inherente a la composición de masas estables, especialmente cuando son asimétricas.»
Leicester desasosegó a Pevsner, quien vio en es-ta obra un retorno al expresionismo. Él, que se había formado junto con los pioneros del movimiento moderno del continente en los años veinte y treinta, tenía que ver la geometría complicada y no rectilínea de Leicester como algo afuncional y poco realista. El «realismo» significaba en el contexto de la primera arquitectura moderna de Alemania (Neue Sachlichkeit) una clase muy peculiar y virtualmente negativa de diseño arquitectónico, con formaslisas y cúbicas, y una ausencia de refinamiento en las proporciones, a la manera de Gropius, por ejemplo.
En el momento de visitar la Maison de Verre, Stirling estaba reconsiderando el uso del vidrio para llegar a la conclusión de que la utilización de elementos acristalados industriales ya existentes presentaba ventajas económicas y de diseño al ser susceptibles de cortarse y encajarse a pie de obra con la misma facilidad que si se tratase de elementos de carpintería. En el clima inglés, frecuentemente nublado, las grandes superficies acristaladas harían posible un interior más luminoso. A la luz del día (como explicaba en Architectural Review)
«parece que no existen más que dos clases de revestimiento exterior [en Leicester]: el ladrillo rojo y un vidrio brumoso y plateado. En realidad, hay cuatro: dos son “reales” y dos están utilizados más bien como un camuflaje».
Existía un juego entre los muros de ladrillo rojo y las baldosas rojas empleadas para pavimentar la plataforma y forrar el hormigón de las salas de conferencias proyectadas. Estos materiales son distinguibles de cerca, pero la diferencia se disuelve ópticamente a cierta distancia y:
«forman el primer par de materiales realirreal. Algo similar ocurre con el vidrio plyglass, es decir, fibra blanca de vidrio entre dos capas de vidrio plano, y con la luna de vidrio que cierra y cubre las naves de los talleres».
Texto de John Jacobus tomado de “Introducción” en James Stirling. Edificios y proyectos 1950-1974, Barcelona, Gustavo Gili, 1975, páginas 21-22.
Debido al reducido tamaño de los terrenos, el Ayuntamiento permitió a la Universidad un edificio de gran altura que dominase el parque municipal. Hasta entonces, la Universidad no había podido levantar edificios de más de tres plantas.
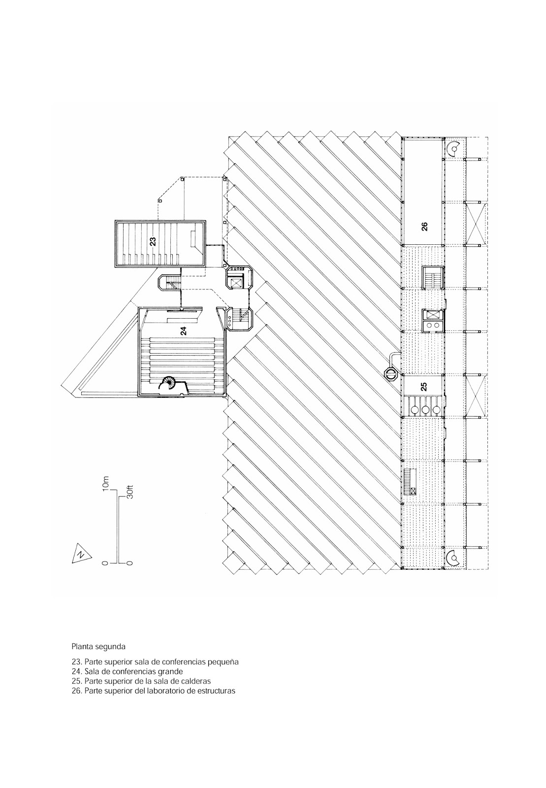
La Escuela de Ingeniería consta de grandes talleres en la planta baja (maquinaria pesada), que ocupan la mayor parte del terreno disponible, y un conjunto vertical de despachos, torres de laboratorios, salas de conferencias y fustes para ascensores y escaleras.
La torre y las naves de talleres están diseñadas de modo diferente. En la torre articulamos la forma de los volúmenes útiles y los fustes de circulación debido a la naturaleza inalterable de estos espacios. Los talleres constituyen un cobertizo no transparente dentro del cual pueden producirse cambios sin repercusión exterior.
Los talleres de aerodinámica y electricidad están encima del cuarto de calderas y del departamento de mantenimiento y cubren parcialmente la carretera de servicio; esto permite izar la maquinaria pesada a través del suelo de estos talleres. Una disposición similar posibilita el intercambio de maquinaria a través de aberturas practicadas en el suelo de los laboratorios de la torre.
Una cubierta industrial, orientada diagonalmente respecto a la planta, introduce la luz del norte en los talleres. Buena parte de los detalles del diseño deriva de esta disposición a 45°.
El cliente exigió un gran depósito de agua a 30,48 metros de altura (para experimentos de presión en el tanque hidráulico situado al nivel del suelo), por lo que las plantas destinadas a administración y cuartos de profesores descansan sobre la estructura necesaria para sostener este depósito en la parte superior del edificio.
Las salas de conferencias están situadas en los niveles inferiores de la torre, y la entrada principal al edificio va debajo de la cara inferior inclinada del aula magna, que forma una especie de pórtico. Una rampa conduce a la entrada de la primera planta (en la parte superior del podio), así como a la escalera de caracol que permite a los que llegan tarde penetrar en el aula por la parte de atrás.
Los vestíbulos de circulación vertical de la torre disminuyen de tamaño en cada planta, de acuerdo con la menor densidad de ocupación existente a medida que se asciende por el edificio. De aquí la sección apuntada de la epidermis acristalada de estos vestíbulos de circulación.
Sólo podía instalarse un ascensor en este edificio de presupuesto reducido, por lo que el grueso del movimiento de estudiantes (250) tiene lugar en la planta baja o vía las escaleras y rampas que ascienden hasta las plantas cuarta y quinta. El ascensor es utilizado funda-mentalmente por los profesores y secretarias que van a las plantas superiores del edificio.
Texto tomado de James Stirling. Edificios y proyectos 1950-1974, Barcelona, Gustavo Gili, 1975, páginas 68-77.
Arquitecto: James Stirling y James Gowan
Diseñado en: 1959-1963
Ubicación: Leicester, Inglaterra, Reino Unido
El diseño de Selwyn College conduce al diseño de los Laboratorios de Ingeniería de la Univesidad de Leicester (1959-1963). Terminado cuando Stirling tenía treinta y siete años, y al final de su asociación con James Gowan, este edificio marca el comienzo de su reputación internacional y, aunque pocos edificios han sido tan apreciados en el momento de su terminación, éste continúa siendo una pauta para los jóvenes arquitectos que buscan una vía de escape a las secuelas de la estética Bauhaus y a la esterilidad de ese omnipresente muzak moderno (estilo contemporáneo) que hoy se produce por doquier. Más de una década después de su construcción, no creo equivocarme al decir que es uno de los diez o doce edificios más importantes de la historia de la arquitectura moderna, y la obra más hermosa hecha en Gran Bretaña desde la Escuela de Arte de Mackintosh en Glasgow, construida al filo del cambio de siglo. No obstante, el historiador se siente tentado a verlo como una realización de las visiones de pioneros tan diversos como Joseph Paxton, Antonio Sant'Elia y los constructivistas rusos.
El emplazamiento del edificio de los laboratorios es un solar sobrante y ocupado por edificios de ser-vicios; su única ventaja compensadora es que domina por uno de los lados un parque público. El lugar es tan pequeño, de forma tan irregular y está tan atestado que era inevitable que al menos una parte del edificio se desarrollase hacia arriba. Este solar atestado e irregular dio lugar a un edificio de contorno extraño que se extiende por el solar y finalmente se dispara aisladamente hacia arriba y por encima de una carretera secundaria que bordea el parque. Complejo en su modo de ocupar el terreno, agolpándose hacia un lado en forma de conjunto de torres, el edificio indica su eficiencia mecánica y material mediante el uso de materiales y componentes que normalmente se emplean en las obras industriales. Los materiales pueden haber sido elegidos por razones económicas, pero parecen visualmente ricos y hasta opulentos.
En el momento de su terminación, me asombró la despreocupación de los arquitectos hacia las enormes dificultades del lugar y el modo como habían llegado a una solución tan dramática como lógica. Visto retrospectivamente, impresiona aún más la hazaña de crear un edificio notable con aparente facilidad y logrando ele-gante y racionalmente lo que sus contemporáneos (especialmente en Japón y en los Estados Unidos) sólo podían conseguir a costa de un gran esfuerzo intelectual (Kahn) o agrupando bastante arbitrariamente formas de masas complicadas (Rudolph). Cuando el análisis racional de las exigencias y el pliego de condiciones del cliente les conducía de modo natural a una solución complicada, original y dramática, ellos aceptaban el hecho. No se inhibían de adoptar una solución que pudiera no estar justificada desde un punto de vista estrechamente funcionalista. Sin embargo, y a pesar del comentario de Pevsner según el cual estaba funcionalmente injustificado, los arquitectos se detuvieron en general a considerar detenidamente las formas del Laboratorio de Ingeniería y esto condujo a un laborioso estudio del edificio y del método de diseño. En consecuencia, el edificio emergió como la declaración más enérgica de la arquitectura desde la Unité marsellesa de Le Corbusier. Aunque los arquitectos no soportaban el peso de una estética pre-concebida o una actitud sociológica concreta, sentía preferencias que influyeron en el proceso de diseño. Como siempre, Stirling estaba convencido de que los sistemas estructurales no deberían determinar la forma del edificio; además, se esforzaban por superar las limitaciones de las formas de cuatro lados y deseaban capitalizar aspectos del pliego de condiciones o del solar que se prestaban a soluciones no rectilíneas. Por razones de coste, utilizaron elementos industriales estandarizados en un diseño cortado a la medida de las circunstancias específicas del usuario y el lugar, en contraste con obras modernas anteriores (por ejemplo, de Mies) en las que el arquitecto especificaba frecuentemente elementos hechos en serie cuyo objetivo estético era crear un efecto de estandarización.
Los niveles de circulación amontonados verticalmente entre las torres son la clave de la solución de diseño. Suelos, paredes y techos estaban acabados con las mismas piezas cerámicas rojas que el exterior. El hecho de que fuese únicamente en los interiores donde se seguía este principio sugiere que no se trata de interiores reales en absoluto, sino más bien de calzadas y puentes. Al contemplar los proyectos de Stirling de mediada la década de los cincuenta podemos ver hasta qué punto era importante esta característica en trabajos tan tempranos como los proyectos presentados a los con-cursos de Honan y Sheffield. El uso del espacio de circulación como elemento preparador indica que concibe sus edificios en términos de sus distintas partes funcionales y con tal grado de articulación que en un programa complejo no diseña uno, sino varios edificios.
Stirling reflexiona aún más sobre los interiores:
«No hemos intentado emplear un idioma de “diseño interior” a través de los diferentes tipos de espacios; la función de un espacio ha sido el único determinante de su aspecto. En esto difiere de algunos edificios contemporáneos; por ejemplo, la Escuela de Arquitectura de Yale contiene un salón de conferencias, salas para los profesores, biblioteca, etc., así como estudios, y todos están trazados con una estética similar, traída desde el exterior, y se utilizan los mismos materiales y superficies en todas partes, cosa que yo hubiera considerado incompatible con actividades tan divergentes. En el edificio de Ingeniería, cada tipo de espacio tiene su propia estética y, de modo similar, el so-porte estructural cambia en las diferentes partes del edificio, siendo el tipo de construcción elegida el más apropiado para las dimensiones y las actividades de espacios particulares, es decir, una cubierta con estructura industrial encima de los talleres, una concha acústica independiente dentro de una caja R.C. colocada in situ para las salas de conferencias, un diagrid R.C. entre columnas periféricas cubriendo los laboratorios de investigación. Hay tan-tos sistemas estructurales como diferencias importantes en la función, y la elección del tipo de estructura fue una de las últimas decisiones dentro de la secuencia del diseño.»
La nitidez de la tolerancia con que Stirling concibió el grupo de torres de Leicester queda ilustrada por su observación de que:
«Toda forma construida tiene un peso y unas propiedades de estabilidad o inestabilidad que dependen de su forma, y es necesario hacer una agrupación de funciones que sea inherentemente estable. En el edificio de Ingeniería, el peso de las torres de encima compensa el voladizo de las salas de conferencias o, por decirlo de otro modo, la magnitud del voladizo viene dictada por el peso que gravita encima; si se eliminase la planta superior, el edificio se hundiría. Sin duda, existe una cualidad arquitectónica inherente a la composición de masas estables, especialmente cuando son asimétricas.»
Leicester desasosegó a Pevsner, quien vio en es-ta obra un retorno al expresionismo. Él, que se había formado junto con los pioneros del movimiento moderno del continente en los años veinte y treinta, tenía que ver la geometría complicada y no rectilínea de Leicester como algo afuncional y poco realista. El «realismo» significaba en el contexto de la primera arquitectura moderna de Alemania (Neue Sachlichkeit) una clase muy peculiar y virtualmente negativa de diseño arquitectónico, con formaslisas y cúbicas, y una ausencia de refinamiento en las proporciones, a la manera de Gropius, por ejemplo.
En el momento de visitar la Maison de Verre, Stirling estaba reconsiderando el uso del vidrio para llegar a la conclusión de que la utilización de elementos acristalados industriales ya existentes presentaba ventajas económicas y de diseño al ser susceptibles de cortarse y encajarse a pie de obra con la misma facilidad que si se tratase de elementos de carpintería. En el clima inglés, frecuentemente nublado, las grandes superficies acristaladas harían posible un interior más luminoso. A la luz del día (como explicaba en Architectural Review)
«parece que no existen más que dos clases de revestimiento exterior [en Leicester]: el ladrillo rojo y un vidrio brumoso y plateado. En realidad, hay cuatro: dos son “reales” y dos están utilizados más bien como un camuflaje».
Existía un juego entre los muros de ladrillo rojo y las baldosas rojas empleadas para pavimentar la plataforma y forrar el hormigón de las salas de conferencias proyectadas. Estos materiales son distinguibles de cerca, pero la diferencia se disuelve ópticamente a cierta distancia y:
«forman el primer par de materiales realirreal. Algo similar ocurre con el vidrio plyglass, es decir, fibra blanca de vidrio entre dos capas de vidrio plano, y con la luna de vidrio que cierra y cubre las naves de los talleres».
Texto de John Jacobus tomado de “Introducción” en James Stirling. Edificios y proyectos 1950-1974, Barcelona, Gustavo Gili, 1975, páginas 21-22.
La Escuela de Ingeniería consta de grandes talleres en la planta baja (maquinaria pesada), que ocupan la mayor parte del terreno disponible, y un conjunto vertical de despachos, torres de laboratorios, salas de conferencias y fustes para ascensores y escaleras.
La torre y las naves de talleres están diseñadas de modo diferente. En la torre articulamos la forma de los volúmenes útiles y los fustes de circulación debido a la naturaleza inalterable de estos espacios. Los talleres constituyen un cobertizo no transparente dentro del cual pueden producirse cambios sin repercusión exterior.
Los talleres de aerodinámica y electricidad están encima del cuarto de calderas y del departamento de mantenimiento y cubren parcialmente la carretera de servicio; esto permite izar la maquinaria pesada a través del suelo de estos talleres. Una disposición similar posibilita el intercambio de maquinaria a través de aberturas practicadas en el suelo de los laboratorios de la torre.
Una cubierta industrial, orientada diagonalmente respecto a la planta, introduce la luz del norte en los talleres. Buena parte de los detalles del diseño deriva de esta disposición a 45°.
El cliente exigió un gran depósito de agua a 30,48 metros de altura (para experimentos de presión en el tanque hidráulico situado al nivel del suelo), por lo que las plantas destinadas a administración y cuartos de profesores descansan sobre la estructura necesaria para sostener este depósito en la parte superior del edificio.
Las salas de conferencias están situadas en los niveles inferiores de la torre, y la entrada principal al edificio va debajo de la cara inferior inclinada del aula magna, que forma una especie de pórtico. Una rampa conduce a la entrada de la primera planta (en la parte superior del podio), así como a la escalera de caracol que permite a los que llegan tarde penetrar en el aula por la parte de atrás.
Los vestíbulos de circulación vertical de la torre disminuyen de tamaño en cada planta, de acuerdo con la menor densidad de ocupación existente a medida que se asciende por el edificio. De aquí la sección apuntada de la epidermis acristalada de estos vestíbulos de circulación.
Sólo podía instalarse un ascensor en este edificio de presupuesto reducido, por lo que el grueso del movimiento de estudiantes (250) tiene lugar en la planta baja o vía las escaleras y rampas que ascienden hasta las plantas cuarta y quinta. El ascensor es utilizado funda-mentalmente por los profesores y secretarias que van a las plantas superiores del edificio.
Texto tomado de James Stirling. Edificios y proyectos 1950-1974, Barcelona, Gustavo Gili, 1975, páginas 68-77.
















































Comentarios
Publicar un comentario