Villa Savoye
Villa Savoye
Arquitecto: Le Corbusier
Construido en: 1929
Ubicación: Poissy, París, Francia
Coordenadas: 48° 55' 28" N, 2° 1' 42" E
Antes de pasar a analizar la vivienda, tanto desde el punto de vista de la imagen como desde el punto de vista de la corporeidad, conviene conocer algunos de los aspectos históricos de la misma.
La Villa Savoye, también conocida como "Les Heures Claires", se encuentra en Poissy, un pueblo pequeño a orillas del río Sena, a unos treinta kilómetros al oeste de París.
Se trata de una de las obras maestras de Le Corbusier, de hecho, es considerada como la obra que cierra el ciclo de las villas blancas del arquitecto. En este proyecto podemos ver algunas de las ideas desarrolladas por Le Corbusier a lo largo de su vida.
Los Savoye eligieron el taller de Le Corbusier y Pierre Jeanneret después de haber visto una de sus construcciones en Ville-d´Avray.
El programa incluye:
Al borde de la propiedad: la casa de un jardinero en la propia villa.
El sótano.
La planta baja: Garaje con capacidad para tres automóviles, el vestíbulo de la entrada, la lavandería, los cuartos de 2 sirvientas y el apartamento del chofer. Primera planta: la cocina, la despensa, el salón, el cuarto de huéspedes con el área del lavabo, la alcoba del hijo con el baño, la alcoba del amo con la tina del baño y el área del lavabo, el tocador y el jardín colgado. Segunda planta: el solario.
La superficie disponible era originalmente de 7 hectáreas.
La superficie ocupada por la villa podemos detallarla así: El área de tierra ocupada por los pilotis es de 408 m2 de los que 205 m2 forman parte del espacio interior de la vivienda (incluido el garaje).
El primer piso ocupa un área de 270 m2 (el apartamento) y 138 m2 (las terrazas).
El segundo piso (el solario) ocupa aproximadamente 70 m2.
La superficie de la casa del jardinero es de 40 m2.
El sistema constructivo: estructura de vigas y pilares de hormigón armado in situ, dispuestos formando una retícula de 4.75 x 4.75 metros.
Las empresas principales: Cormier (la estructura, albañilería); Duflon (trabajo metalúrgico); Riou (la ebanistería); Electricite Moderne (alumbrado); Ferrari (la calefacción central); el Violoncelo (pintura, vidriado); Riou (pavimento); Crepin (trabajos de jardinería)
El coste: La valoración inicial de Le Corbusier era de FRF 787,000. La estimación firmada por el cliente el 15 de febrero de 1929 fue de FRF 507,900 (valor contemporáneo); la cantidad que se estimó en 1931 fue de FRF 900,000.
Inicialmente fue utilizada como casa rural, como villa de fin de semana de la familia Savoye, es decir, tiene que dar cabida a una pareja (Pierre Savoye y su esposa Eugenia) y a su único hijo. Este es el momento histórico en el cual vamos a realizar el análisis.
El deterioro que ha sufrido la villa debido a sus diferentes y variopintos usos ha llevado a una polémica restauración, lo que dificulta que en la actualidad podamos entender algunos aspectos relativos a la imagen del proyecto.
La zona residencial donde esta ubicada la Villa Savoye se encuentra en una posición de cumbre desde la cual se puede disfrutar de impresionantes vistas del Sena.
La villa queda oculta desde la calle, sólo puede percibirse un gran muro de piedra, que delimita el borde sur de la propiedad. Sobre el muro asoman numerosos árboles. El visitante sigue esta pared hasta que llega a la entrada, materializada por una verja blanca, A la derecha del acceso se encuentra la casa del jardinero, un pequeño volumen blanco en equilibrio sobre cuatro pilotis delgados. Habiendo atravesado la verja de la entrada, el visitante sigue un camino de tierra que atraviesa el denso arbolado, llevándonos hasta un inmenso claro. En el corazón del claro se encuentra la villa.
El acceso a la parcela es por el norte, contra el sol; lo que hizo que Le Corbusier planteara la posición de la villa invertida, con la entrada principal orientada al sur.
Dos caminos corren paralelos, envueltos por el césped, planteando un recorrido y ocultándose bajo la villa antes de abrazarla.
Le Corbusier escogió deliberadamente la situación de la villa, en el centro del claro. Pone así la morada a una cierta distancia, animando al visitante a dar una vuelta a la casa antes de entrar. Este efecto es hoy en día mayor dado que el visitante llega a pie. Sin embargo, en el momento que nosotros estamos estudiando (momento en el que la casa es habitada por los Savoye y el personal de servicio) el acceso a motor era “un requisito fundamental del programa” (citando a Le Corbusier), y el automóvil entraría en el garaje que conecta directamente al vestíbulo de la entrada.
En el recorrido de los Savoye hacia el interior de la casa, estos se encontrarían frente a una sola fachada, la cual no comunica tan energéticamente como el resto de fachadas el mensaje que Le Corbusier buscaba transmitir en su obra.
Esta fachada aparece anclada a la tierra por la pieza de servicio, que no posee la transparencia del vestíbulo. Muestra una composición horizontal cuyo componente primario es un paralepípedo blanco el cual aparece soportado por dos finos pilotis que delinean un peristilo. Esta “caja” está cortada por una ventana corrida a lo largo de la longitud de la fachada. Monta sobre el plinto formado por la planta baja, que a su vez está compuesta de tres elementos mayores:
Primero, los dos pilotis antedichos, enrasados con el volumen que soportan.
Segundo, un cuerpo principal (situado en el mismo plano de fachada que la primera planta), compuesto por una sección grande de vidriado industrial puesta sobre un zócalo de albañilería blanca.
Y por último, dos piezas oscuras que flanquean el cuerpo anterior, cada una de estas piezas contiene una sección de vidriado algo menor que la del elemento central. Estas dos piezas, inscritas dentro de un plano secundario, completan los contornos de esta fachada.
Resulta extraño ver como el acceso en automóvil no permite contemplar más que la fachada trasera, pues una vez el vehículo accede al interior de ese bosque de pilares, a esa especie de peristilo que le otorga un carácter clásico a la obra, éste se encuentra imposibilitado para poder admirar el resto de las fachadas.
Le Corbusier utiliza los pilotis con el objetivo de liberar una zona de circulación bajo el edificio, despegando así la vivienda del terreno. Como hemos indicado, una vez que el automóvil se encuentra debajo de la vivienda, se ha perdido la imagen de la fachada del edificio. Esta imagen no se volverá a recuperar en todo el recorrido hasta el interior de la vivienda. En este singular espacio, exterior pero cubierto, vemos un importante esfuerzo de respeto del medio natural. Casi poéticamente, antepone el bosque de pilotis que sostiene la vivienda al arbolado que la rodea. Así, la vivienda apoya sobre el terreno sin causar ninguna perturbación en éste.
Siguiendo con nuestro recorrido alcanzamos el vestíbulo. El propio Le Corbusier indica sobre el vestíbulo:
“A estas alturas, los visitantes dan la vuelta por el alrededor preguntándose qué es lo que esta pasando, realmente no llegan a entender lo que están viendo y sintiendo. Ellos no relacionan nada con lo que consideran una “casa normal”. Sienten que están experimentando algo completamente nuevo. Y... no están aburridos, creo yo!”
Bajo el resguardo de los pilotis, la imagen exterior del vestíbulo se caracteriza por la transparencia. La puerta consta de dos hojas negras de metal, desde este punto se puede vislumbrar el interior.
El vestíbulo funciona como la entrada a la villa y viene marcado por un eje central, como marcan los cánones de la arquitectura clásica. Posee una singular atmósfera, algo fría. Quizás la frialdad de esta imagen la proporcionan los postes de sección circular.
No debemos pensar que este lugar es una mera antesala de otros espacios más prestigiosos, de hecho, se encuentra en contacto con la rampa, elemento que conecta los espacios más importantes de la casa (el jardín colgado o el solario). Es pues uno de los puntos arquitectónicos mas sobresalientes de la villa Savoye.
En la imagen de este espacio resalta un número selecto de elementos arquitectónicos: la escalera, la rampa, las paredes, las columnas etc. El vestíbulo es predominantemente blanco. Produciéndose un contraste con el pavimento gris oscuro que cubre la rampa.
En la composición aparece, en el eje de la entrada, la rampa que asciende gradualmente en dos tramos al primer piso. A la izquierda de la rampa aparece una escalera helicoidal con balaustre sólido y barandilla tubular simple. La escalera asciende a la plata noble y también proporciona el acceso a dos sótanos localizados en el centro de la villa. En uno de los pilotis, vemos un estante que parece flotar en el aire. Este estante apoya en una vara de metal delgada. Se trata de una referencia al tema de la mesa-pedestal.
Una fila de columnas queda ligeramente desplazada respecto a la rampa, definiendo un espacio estrecho, longitudinal que lleva a los cuartos de servicio. De nuevo, un lavabo se ata a la segunda columna de esta fila, introduciendo un elemento inesperado en el vestíbulo.
El suelo presenta la materialidad de azulejos blancos dispuestos en diagonal, contrastando con el pavimento gris oscuro que cubre la rampa.
La asimetría del vestíbulo se acentúa por la iluminación cuyo brillo varía en intensidad. Por un lado tenemos la luz que entra a través de la cara noroeste, principalmente acristalada, por otro lado los rayos que bajan a través de la cavidad de la escalera, de forma escultórica, y finalmente a través de las altas aberturas de la rampa que llevan al jardín colgado.
Luz artificial es indirecta. Se proporciona por lámparas atadas a algunas de las columnas y paredes.
La extraordinaria organización de este espacio se refleja también en el tratamiento de su salida. El conjunto se abre al exterior ofreciendo una vista panorámica el entorno.
Desde el vestíbulo, una rampa nos lleva sin apenas notarlo a la primera planta, donde se desarrolla la vida de los habitantes. Una rampa proporciona una ascensión gradual, creando sensaciones totalmente diferentes a las que sentiríamos al subir unos escalones.
El propio Le Corbusier indica: “Una escalera separa un suelo de otro, una rampa los une.”
La rampa en la Villa Savoye es mucho más que un elemento de comunicación vertical. Posicionada a lo largo del eje central del proyecto, forma la espina dorsal de la casa, es el punto alrededor del cual se organiza la espacialidad vertical del proyecto. Se inspira en la arquitectura árabe en la cual, para entender un espacio, debemos recorrerlo.
La imagen de la rampa domina el espacio. Está de pie en la luz oscura del vestíbulo, protegida por una pared a la que se ata una barandilla tubular. Una elegante columna, se muestra continua a lo largo del eje de la rampa. La rampa se inclina suavemente al primer piso, iluminada por los rayos laterales de luz que atraviesan un vidriado triangular. Los listones horizontales de esta ventana proyectan sus sombras en las paredes blancas que flanquean la rampa.
El desembarco al primer piso está bañado de luz natural y se produce en el corazón de la vivienda. Aquí, la transparencia de una segunda ventana, descubre los secretos del jardín.
Cruzando una puerta, la rampa continúa al aire libre hacia la zona del solario, en el nivel más alto.
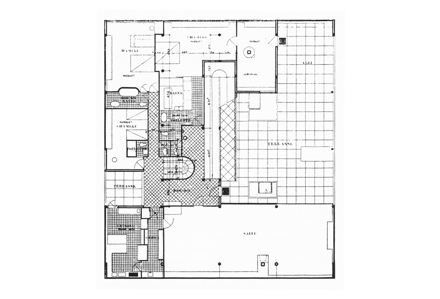
El salón es una de las piezas más importantes de la villa. Es una gran superficie rectangular, que corresponde a tres módulos en la fachada. Puede accederse a él por tres puntos: el vestíbulo de la primera planta, el jardín colgante y la despensa.
Una pared vidriada separa el salón del jardín colgante. Mientras una ventana corredera se dispone a lo largo de las fachadas exteriores. La pared que divide el salón de la despensa es de un azul pálido, mientras la pared opuesta es rosa.
Las aberturas de esta habitación restringen el amueblamiento. Para prevenir los problemas de almacenamiento que esto podría provocar, Le Corbusier incorpora armarios empotrados debajo de la ventana corrida.
Aunque se concibió como un único espacio, Le Corbusier lo divide en cuatro subzonas: un area para comer cerca de la zona de despensa, una área de estar alrededor de la chimenea, un área de lectura y de conversación delante de la pared vidriada; y una área de juegos a lo largo de la fachada sur-oriental.
Los muebles burgueses escogidos por los Savoya no se corresponden con el mobiliario diseñado por Le Corbusier, Pierre Jeanneret y Charlotte Perriand, rompiendo con la imagen que estos habían concebido para la sala.
En lo que se refiere a la iluminación natural, es importante destacar la luz que penetra desde el jardín colgado a través del paramento de cristal.
La iluminación artificial está materializada por unos tubos que cuelgan del techo, remitiéndonos a la idea de industrialización, una de las preocupaciones principales de los arquitectos del movimiento moderno.
Resulta interesante la imagen de este espacio por su gran transparencia. Así, los Savoye disfrutarían de interesantes vistas, tanto del extenso claro de la villa como del jardín colgado.
EL JARDÍN COLGANTE
“Es imposible tener buenas vistas desde el suelo. Además, el césped está húmedo, frío... (...); por estas razones, el verdadero jardín de la casa no estará en el suelo, sino levantado 3.50 metros. Éste será el jardín colgante cuya tierra está seca y salubre, y desde donde se puede contemplar todo el paisaje, con mejores vistas. Además, en nuestro clima lluvioso, es conveniente que el suelo del jardín seque instantáneamente; por esta razón estará compuesto por baldosas de cemento.”
Es el espacio más prestigioso de la villa, en el que Le Corbusier basa gran parte del proyecto. Un lugar de reposo y una verdadera “sala exterior” desde donde se pueden tener grandes vistas del entorno. Supone un espacio característico que a la vez satisface las necesidades del programa.
Distribuye increíblemente la luz a toda la casa. Las paredes de vidrio del salón y otros cuartos de la casa se abren hacia el jardín colgante, de modo que el sol accede por todas partes hasta el mismo corazón de la casa.
En la imagen de este espacio se puede destacar la transparencia. Es un lugar desde el cual se puede contemplar serenamente la arquitectura del edificio. El volumen transparente de la sala se muestra a través de su inmensa pared vidriada. A la izquierda, destacan las vistas a través de la ventana corrida, que se funden en el verdor que delimita el lugar. En contraste con una construcción de líneas rectas aparecen las curvas y contracurvas del solario que se abre hacia el cielo.
Una mesa de hormigón, que apoya en uno de los pilotis del jardín colgante, es uno de los elementos que caracterizan la imagen de este espacio. Además, en el piso, plantas y tiras de césped surgen entre las juntas del pavimento, enfatizando que este lugar se diseñó como un jardín.
El solario es el punto donde culmina el recorrido que sugiere la rampa. Es otro de los elementos clave de la villa. El carácter orgánico de algunos elementos del solario contrasta con la imagen regular que ofrecen otros espacios del proyecto. actúa como una atalaya desde la que se obtienen interesantes vistas: por una parte vistas de la arquitectura de la casa y por otro lado vistas controladas a través de sus propias paredes. Así, dirigiendo la mirada hacia abajo, vemos la zona donde tiene lugar la vida de los Savoye, mientras que, si continuamos ascendiendo a lo más alto de la rampa, nos topamos con una apertura rectangular, agujereada en la pared del solario, que enmarca una panorámica sobre el río.
CORPOREIDAD
La Villa Savoye se percibe, con sus pilotis, apoyada en el centro del claro. Esto se entiende al hacer una lectura de los volúmenes y de sus apoyos. Gracias a esto, la casa no altera las condiciones del terreno.
El sistema estructural de la villa es a base de pórticos de hormigón armado. Esto es consecuencia de la investigación llevada a cabo con la propuesta dominó, donde aparecía un sistema estructural de hormigón armado basado en la utilización del pilar y la losa.
Esta propuesta dominó, anticipaba ya lo que sería la planta libre e introducía la idea del sistema estándar de piezas prefabricadas, la construcción en serie y, en consecuencia, la vivienda económica. Pero este es otro asunto.
Volviendo a nuestro caso, ese conjunto de soportes que, en la villa Savoye, transmiten las cargas al terreno, conforma una retícula. En realidad, esta retícula se desdobla para adaptarse a la rampa, espina dorsal de la circulación en el proyecto.
El volumen blanco, abstracto, contiene el espacio en el cual se desarrolla la vida de los Savoye. Es una pieza que caracteriza la corporeidad del conjunto, mostrándose como una caja soportada por pilotis.
Sin embargo, no podemos hablar de esa caja blanca como un cuerpo tosco, pesado. Es decir, aunque la caja apoya en los pilotis, aparece una importante rasgadura horizontal que elimina esa idea de pesadez.
Esta ventana corrida solo es posible gracias a la utilización de materiales como el hormigón armado y al desarrollo de nuevas técnicas constructivas para la aplicación de este material. Así, la posibilidad de trabajar a flexión que ofrece el hormigón armado permite la creación de voladizos. Retranquear la estructura de la fachada implica la liberación de esta última, permitiendo la creación de esas fenêtre longuer.
El espacio destinado a los sirvientes está tratado de una forma diferente, casi desmaterializado por su transparencia. Al estar situado, rehundido bajo la caja representativa, queda en sombra. Ayuda así al cuerpo principal a leerse como un volumen puro. Además, se produce un cambio en el cromatismo, lo que favorece el discernimiento de los volúmenes y los pesos.
Si analizamos el dibujo de Le Corbusier “Las cuatro composiciones”, vemos como, en la villa Savoye, se funde la pureza de volumen que adoptó el arquitecto para proyectos como la villa Stein (Garches), con la libertad de composición en planta de proyectos como la villa Baizean (Cartago). Y es que, en la villa Savoie, Los muros, elementos que definen distintos ámbitos dentro de la vivienda, son independientes de la estructura.
ESPACIO E INTENCION
Vamos a tener en cuenta, a la hora de analizar la forma espacial de la villa Savoye dos redes de movimiento.
Por un lado aislaremos las piezas que soportan el movimiento, reconoceremos su forma y las pondremos en relación. Nos detendremos en el análisis del salón y el jardín colgado al considerarlos como estancias principales.
Por otro lado, incorporaremos en el análisis la actividad, de la cual dependerá la forma espacial. En ningún caso debemos olvidar que la casa es concebida como residencia de fin de semana de la familia Savoye, puesto que como indica Frankl, las personas forman parte de la arquitectura, a diferencia de la pintura y la escultura, en la arquitectura uno no se encuentra delante, sino dentro.
Dentro del ritual de acceso que propone Le Corbusier para acceder a la villa Savoye, una vez atravesado el anillo boscoso y alcanzado el claro donde se dispone la villa, encontramos diversas entradas.
Por un lado, aparecen dos pequeños accesos laterales. Son accesos de carácter secundario y nos llevan los apartamentos del servicio.
Por otro lado vemos un nuevo acceso lateral que recae en el vestíbulo. No se trata tampoco del acceso principal, pues nos lleva al ámbito de la escalera de caracol, que como ya veremos queda asociada a un movimiento más relacionado con el uso que con la vivencia del espacio.
Los accesos principales son, sin lugar a dudas, el que incide frontalmente al vestíbulo y, por supuesto, el acceso rodado por el que tanto se interesa Le Corbusier en éste y otros proyectos. En ambos casos entramos en el eje articulador de la casa, donde se encuentra la otra pieza que recoge el movimiento vertical de la vivienda, la rampa.
Las dos piezas que soportan el movimiento vertical en el edificio son la rampa y la escalera. Funcionan como eje vertebrador alrededor del cual se articulan todas las piezas. Son dos piezas con un carácter muy diferente.
Por un lado tenemos la escalera, la cual queda ligada a espacios menos representativos, sirviendo al sótano, a la cocina... en definitiva, a espacios de servicio. La escalera, de caracol, comunica directamente las distintas plantas sin mantener prácticamente ninguna relación con otros espacios (salvo algunas visuales a través de pequeñas aberturas). Es una pieza que se cierra en sí misma, atravesando el vestíbulo y el distribuidor y alcanzando el solario. Podemos decir que tiene un carácter introvertido. Se trata de un órgano vertical puro que se inserta libremente en la composición horizontal.
Por otro lado aparece la rampa. Ésta queda asociada a los espacios principales: salón, terraza, cubierta... Supone una ascensión tranquila, suave. Es una ascensión ceremonial que nos lleva hasta el solario a través de espacios cubiertos y descubiertos. Comunica los distintos espacios estableciendo diversas relaciones (visuales entre los corredores y la terraza...). La rampa sí la podemos asociar con la vivencia del espacio. Se trata de una pieza hecha para disfrutar del movimiento, una pieza que acerca a la villa a la arquitectura árabe, arquitectura que se aprecia precisamente a partir del movimiento. Para poder entender la vivienda ha de ser recorrida.
El propio Le Corbusier indica: “Una rampa proporciona una ascensión gradual, creando sensaciones totalmente diferentes a las que se sienten al subir escalones. Una escalera separa un suelo de otro, una rampa los une."
Vamos a centrar ahora nuestro análisis en el salón y el jardín colgado, piezas que consideramos como las estancias más significativas.
EL SALÓN
De forma rectangular, tiene una superficie de 86m2 (14.25m de longitud y 6m de anchura). Puede accederse el por tres entradas: el distribuidor, el jardín colgado y la despensa.
El acceso principal al salón se produce desde el distribuidor que aparece en planta primera. Este distribuidor queda servido por las dos piezas que recogen el movimiento vertical del proyecto. Principalmente entraríamos al salón recorriendo antes la rampa, puesto que la escalera de caracol queda, como hemos dicho, más asociada a espacios secundarios de la vivienda.
Una vez dentro del salón, los soportes quedan totalmente perfilados modulando el espacio. Podemos leer hasta tres módulos. Las vigas de cuelgue que aparecen en el techo nos ayudan a leer este tema de la modulación, percibiéndose como pequeñas costillas dentro de la estancia.
En la cara sur, una ventana corrida recorre todo el salón de uno a otro extremo. Los soportes aparecen aquí separados del cerramiento, lo que da a la rasgadura horizontal una mayor continuidad en fachada.
La cara norte es la que contiene el acceso desde el distribuidor. En esta, uno de los módulos es opaco mientras que los otros dos quedan cerrados por una cristalera de suelo a techo. Un enorme tablero vidriado de 9.20 x 3.11 m y compuesto de dos marcos corredizos. A través de la cristalera, el salón se relaciona con el jardín colgado. En este caso, los soportes se enrasan con la superficie de vidrio.
A oeste, el límite es un plano opaco con una pequeña puerta que lleva a la cocina. De color rosado, es el límite de esta estancia con la zona de servicio.
A este aparece de nuevo la fênetre longer. En este caso la rasgadura no ocupa toda la cara sino que para a la altura de los soportes retirados de la cara sur. Así, las fachadas sur y este son diferentes. Este límite, situado frente al anterior, es de azul palido.
El suelo se muestra como una superficie uniforme y continua. Se muestra simplemente como un plano que contrasta con el techo que, como ya hemos indicado, aparece continuamente modulado por las costillas de hormigón.
El mobiliario que indicó Le Corbusier definía cuatro ámbitos de uso dentro del salón:
Por un lado, cerca de la despensa, el proyecto propuso una zona de comedor.
Por otro lado, junto a la cristalera de la cara norte se proyectó una zona de relación y lectura.
Alrededor de una chimenea central, que humaniza el espacio, Le Corbusier trabajó una zona de estar.
Por último, una zona de juegos fue propuesta bajo las rasgaduras de los límites que conforman fachada.
Los muebles burgueses elegidos por los Savoye difieren en gran medida del mobiliario diseñado por Le Corbusier, Pierre Jeanneret y Charlotte Perriand en 1929. Al parecer, el mobiliario proyectado, no sedujo a los dueños de la villa.
Por el día, este espacio queda bañado de luz solar gracias a las rasgaduras y, sobretodo, a esa relación con el jardín. Por la noche, la habitación es iluminada por una larga luminaria colgante de acero niquelado.
EL JARDÍN COLGADO:
Al jardín se puede acceder desde el distribuidor, desde el salón y desde el gabinete. Es una pieza que baña de luz espacios de tanta relevancia como el salón o la rampa. Posee una envolvente más irregular que el salón.
En lo que a sus límites se refiere, la cara sur está conformada por la vidriera que la comunica con el salón.
La cara este continúa con la rasgadura que procedía del salón. Esta fenêtre longer atraviesa la zona descubierta de la terraza sin llegar al otro extremo. Los pilares aparecen enrasados en fachada.
La cara oeste es tangente a la rampa. El módulo que queda cubierto comunica con la zona de noche de la vivienda.
El límite norte es, en su parte descubierta, un macizo en el que aparece un vano cuadrado. En su parte cubierta, vemos de nuevo una rasgadura de uno a otro extremo que forma parte de la fachada.
Parte de la terraza se abre al cielo, permitiendo vistas del solario. Otra parte queda cubierta creando un ámbito más resguardado.
En la terraza, el suelo tiene la apariencia de una malla. Esto es debido al césped que crece en las juntas del pavimento. Dentro de la terraza aparecen dos grandes jardineras. Así, se manifiesta la idea de Le Corbusier de recuperar el jardín en la zona superior de la casa.
Junto a la rasgadura de la cara este aparece una mesa que, empotrada en uno de los pilotis vuela, desafiando a la gravedad. Entorno a esta mesa podemos leer un espacio de relación y esparcimiento.
La rampa, ahora ya totalmente descubierta, continúa su tranquila ascensión en el ámbito del jardín colgado hasta alcanzar el solario.
Arquitecto: Le Corbusier
Construido en: 1929
Ubicación: Poissy, París, Francia
Coordenadas: 48° 55' 28" N, 2° 1' 42" E
La Villa Savoye, también conocida como "Les Heures Claires", se encuentra en Poissy, un pueblo pequeño a orillas del río Sena, a unos treinta kilómetros al oeste de París.
Se trata de una de las obras maestras de Le Corbusier, de hecho, es considerada como la obra que cierra el ciclo de las villas blancas del arquitecto. En este proyecto podemos ver algunas de las ideas desarrolladas por Le Corbusier a lo largo de su vida.
Los Savoye eligieron el taller de Le Corbusier y Pierre Jeanneret después de haber visto una de sus construcciones en Ville-d´Avray.
El verano 1928 supone el inicio del proceso de diseño. En la primavera de 1929 comienza la construcción. El 31 de diciembre de 1929 supone el fin de los trabajos de construcción (para la cáscara). Es en junio de 1931 cuando se produce la entrega de la casa. Fue pues construida entre 1928 y 1931. Poco después fueron necesarias obras de reparación de la estanqueidad y de la calefacción.
Al borde de la propiedad: la casa de un jardinero en la propia villa.
El sótano.
La planta baja: Garaje con capacidad para tres automóviles, el vestíbulo de la entrada, la lavandería, los cuartos de 2 sirvientas y el apartamento del chofer. Primera planta: la cocina, la despensa, el salón, el cuarto de huéspedes con el área del lavabo, la alcoba del hijo con el baño, la alcoba del amo con la tina del baño y el área del lavabo, el tocador y el jardín colgado. Segunda planta: el solario.
La superficie disponible era originalmente de 7 hectáreas.
La superficie ocupada por la villa podemos detallarla así: El área de tierra ocupada por los pilotis es de 408 m2 de los que 205 m2 forman parte del espacio interior de la vivienda (incluido el garaje).
El primer piso ocupa un área de 270 m2 (el apartamento) y 138 m2 (las terrazas).
El segundo piso (el solario) ocupa aproximadamente 70 m2.
La superficie de la casa del jardinero es de 40 m2.
El sistema constructivo: estructura de vigas y pilares de hormigón armado in situ, dispuestos formando una retícula de 4.75 x 4.75 metros.
Las empresas principales: Cormier (la estructura, albañilería); Duflon (trabajo metalúrgico); Riou (la ebanistería); Electricite Moderne (alumbrado); Ferrari (la calefacción central); el Violoncelo (pintura, vidriado); Riou (pavimento); Crepin (trabajos de jardinería)
El coste: La valoración inicial de Le Corbusier era de FRF 787,000. La estimación firmada por el cliente el 15 de febrero de 1929 fue de FRF 507,900 (valor contemporáneo); la cantidad que se estimó en 1931 fue de FRF 900,000.
Inicialmente fue utilizada como casa rural, como villa de fin de semana de la familia Savoye, es decir, tiene que dar cabida a una pareja (Pierre Savoye y su esposa Eugenia) y a su único hijo. Este es el momento histórico en el cual vamos a realizar el análisis.
El deterioro que ha sufrido la villa debido a sus diferentes y variopintos usos ha llevado a una polémica restauración, lo que dificulta que en la actualidad podamos entender algunos aspectos relativos a la imagen del proyecto.
La villa queda oculta desde la calle, sólo puede percibirse un gran muro de piedra, que delimita el borde sur de la propiedad. Sobre el muro asoman numerosos árboles. El visitante sigue esta pared hasta que llega a la entrada, materializada por una verja blanca, A la derecha del acceso se encuentra la casa del jardinero, un pequeño volumen blanco en equilibrio sobre cuatro pilotis delgados. Habiendo atravesado la verja de la entrada, el visitante sigue un camino de tierra que atraviesa el denso arbolado, llevándonos hasta un inmenso claro. En el corazón del claro se encuentra la villa.
El acceso a la parcela es por el norte, contra el sol; lo que hizo que Le Corbusier planteara la posición de la villa invertida, con la entrada principal orientada al sur.
Dos caminos corren paralelos, envueltos por el césped, planteando un recorrido y ocultándose bajo la villa antes de abrazarla.
Le Corbusier escogió deliberadamente la situación de la villa, en el centro del claro. Pone así la morada a una cierta distancia, animando al visitante a dar una vuelta a la casa antes de entrar. Este efecto es hoy en día mayor dado que el visitante llega a pie. Sin embargo, en el momento que nosotros estamos estudiando (momento en el que la casa es habitada por los Savoye y el personal de servicio) el acceso a motor era “un requisito fundamental del programa” (citando a Le Corbusier), y el automóvil entraría en el garaje que conecta directamente al vestíbulo de la entrada.
En el recorrido de los Savoye hacia el interior de la casa, estos se encontrarían frente a una sola fachada, la cual no comunica tan energéticamente como el resto de fachadas el mensaje que Le Corbusier buscaba transmitir en su obra.
Esta fachada aparece anclada a la tierra por la pieza de servicio, que no posee la transparencia del vestíbulo. Muestra una composición horizontal cuyo componente primario es un paralepípedo blanco el cual aparece soportado por dos finos pilotis que delinean un peristilo. Esta “caja” está cortada por una ventana corrida a lo largo de la longitud de la fachada. Monta sobre el plinto formado por la planta baja, que a su vez está compuesta de tres elementos mayores:
Primero, los dos pilotis antedichos, enrasados con el volumen que soportan.
Segundo, un cuerpo principal (situado en el mismo plano de fachada que la primera planta), compuesto por una sección grande de vidriado industrial puesta sobre un zócalo de albañilería blanca.
Y por último, dos piezas oscuras que flanquean el cuerpo anterior, cada una de estas piezas contiene una sección de vidriado algo menor que la del elemento central. Estas dos piezas, inscritas dentro de un plano secundario, completan los contornos de esta fachada.
Resulta extraño ver como el acceso en automóvil no permite contemplar más que la fachada trasera, pues una vez el vehículo accede al interior de ese bosque de pilares, a esa especie de peristilo que le otorga un carácter clásico a la obra, éste se encuentra imposibilitado para poder admirar el resto de las fachadas.
Le Corbusier utiliza los pilotis con el objetivo de liberar una zona de circulación bajo el edificio, despegando así la vivienda del terreno. Como hemos indicado, una vez que el automóvil se encuentra debajo de la vivienda, se ha perdido la imagen de la fachada del edificio. Esta imagen no se volverá a recuperar en todo el recorrido hasta el interior de la vivienda. En este singular espacio, exterior pero cubierto, vemos un importante esfuerzo de respeto del medio natural. Casi poéticamente, antepone el bosque de pilotis que sostiene la vivienda al arbolado que la rodea. Así, la vivienda apoya sobre el terreno sin causar ninguna perturbación en éste.
Siguiendo con nuestro recorrido alcanzamos el vestíbulo. El propio Le Corbusier indica sobre el vestíbulo:
“A estas alturas, los visitantes dan la vuelta por el alrededor preguntándose qué es lo que esta pasando, realmente no llegan a entender lo que están viendo y sintiendo. Ellos no relacionan nada con lo que consideran una “casa normal”. Sienten que están experimentando algo completamente nuevo. Y... no están aburridos, creo yo!”
Bajo el resguardo de los pilotis, la imagen exterior del vestíbulo se caracteriza por la transparencia. La puerta consta de dos hojas negras de metal, desde este punto se puede vislumbrar el interior.
El vestíbulo funciona como la entrada a la villa y viene marcado por un eje central, como marcan los cánones de la arquitectura clásica. Posee una singular atmósfera, algo fría. Quizás la frialdad de esta imagen la proporcionan los postes de sección circular.
No debemos pensar que este lugar es una mera antesala de otros espacios más prestigiosos, de hecho, se encuentra en contacto con la rampa, elemento que conecta los espacios más importantes de la casa (el jardín colgado o el solario). Es pues uno de los puntos arquitectónicos mas sobresalientes de la villa Savoye.
En la imagen de este espacio resalta un número selecto de elementos arquitectónicos: la escalera, la rampa, las paredes, las columnas etc. El vestíbulo es predominantemente blanco. Produciéndose un contraste con el pavimento gris oscuro que cubre la rampa.
En la composición aparece, en el eje de la entrada, la rampa que asciende gradualmente en dos tramos al primer piso. A la izquierda de la rampa aparece una escalera helicoidal con balaustre sólido y barandilla tubular simple. La escalera asciende a la plata noble y también proporciona el acceso a dos sótanos localizados en el centro de la villa. En uno de los pilotis, vemos un estante que parece flotar en el aire. Este estante apoya en una vara de metal delgada. Se trata de una referencia al tema de la mesa-pedestal.
Una fila de columnas queda ligeramente desplazada respecto a la rampa, definiendo un espacio estrecho, longitudinal que lleva a los cuartos de servicio. De nuevo, un lavabo se ata a la segunda columna de esta fila, introduciendo un elemento inesperado en el vestíbulo.
El suelo presenta la materialidad de azulejos blancos dispuestos en diagonal, contrastando con el pavimento gris oscuro que cubre la rampa.
La asimetría del vestíbulo se acentúa por la iluminación cuyo brillo varía en intensidad. Por un lado tenemos la luz que entra a través de la cara noroeste, principalmente acristalada, por otro lado los rayos que bajan a través de la cavidad de la escalera, de forma escultórica, y finalmente a través de las altas aberturas de la rampa que llevan al jardín colgado.
Luz artificial es indirecta. Se proporciona por lámparas atadas a algunas de las columnas y paredes.
La extraordinaria organización de este espacio se refleja también en el tratamiento de su salida. El conjunto se abre al exterior ofreciendo una vista panorámica el entorno.
Desde el vestíbulo, una rampa nos lleva sin apenas notarlo a la primera planta, donde se desarrolla la vida de los habitantes. Una rampa proporciona una ascensión gradual, creando sensaciones totalmente diferentes a las que sentiríamos al subir unos escalones.
El propio Le Corbusier indica: “Una escalera separa un suelo de otro, una rampa los une.”
La rampa en la Villa Savoye es mucho más que un elemento de comunicación vertical. Posicionada a lo largo del eje central del proyecto, forma la espina dorsal de la casa, es el punto alrededor del cual se organiza la espacialidad vertical del proyecto. Se inspira en la arquitectura árabe en la cual, para entender un espacio, debemos recorrerlo.
La imagen de la rampa domina el espacio. Está de pie en la luz oscura del vestíbulo, protegida por una pared a la que se ata una barandilla tubular. Una elegante columna, se muestra continua a lo largo del eje de la rampa. La rampa se inclina suavemente al primer piso, iluminada por los rayos laterales de luz que atraviesan un vidriado triangular. Los listones horizontales de esta ventana proyectan sus sombras en las paredes blancas que flanquean la rampa.
El desembarco al primer piso está bañado de luz natural y se produce en el corazón de la vivienda. Aquí, la transparencia de una segunda ventana, descubre los secretos del jardín.
Cruzando una puerta, la rampa continúa al aire libre hacia la zona del solario, en el nivel más alto.
El salón es una de las piezas más importantes de la villa. Es una gran superficie rectangular, que corresponde a tres módulos en la fachada. Puede accederse a él por tres puntos: el vestíbulo de la primera planta, el jardín colgante y la despensa.
Una pared vidriada separa el salón del jardín colgante. Mientras una ventana corredera se dispone a lo largo de las fachadas exteriores. La pared que divide el salón de la despensa es de un azul pálido, mientras la pared opuesta es rosa.
Las aberturas de esta habitación restringen el amueblamiento. Para prevenir los problemas de almacenamiento que esto podría provocar, Le Corbusier incorpora armarios empotrados debajo de la ventana corrida.
Aunque se concibió como un único espacio, Le Corbusier lo divide en cuatro subzonas: un area para comer cerca de la zona de despensa, una área de estar alrededor de la chimenea, un área de lectura y de conversación delante de la pared vidriada; y una área de juegos a lo largo de la fachada sur-oriental.
Los muebles burgueses escogidos por los Savoya no se corresponden con el mobiliario diseñado por Le Corbusier, Pierre Jeanneret y Charlotte Perriand, rompiendo con la imagen que estos habían concebido para la sala.
En lo que se refiere a la iluminación natural, es importante destacar la luz que penetra desde el jardín colgado a través del paramento de cristal.
La iluminación artificial está materializada por unos tubos que cuelgan del techo, remitiéndonos a la idea de industrialización, una de las preocupaciones principales de los arquitectos del movimiento moderno.
Resulta interesante la imagen de este espacio por su gran transparencia. Así, los Savoye disfrutarían de interesantes vistas, tanto del extenso claro de la villa como del jardín colgado.
EL JARDÍN COLGANTE
“Es imposible tener buenas vistas desde el suelo. Además, el césped está húmedo, frío... (...); por estas razones, el verdadero jardín de la casa no estará en el suelo, sino levantado 3.50 metros. Éste será el jardín colgante cuya tierra está seca y salubre, y desde donde se puede contemplar todo el paisaje, con mejores vistas. Además, en nuestro clima lluvioso, es conveniente que el suelo del jardín seque instantáneamente; por esta razón estará compuesto por baldosas de cemento.”
Es el espacio más prestigioso de la villa, en el que Le Corbusier basa gran parte del proyecto. Un lugar de reposo y una verdadera “sala exterior” desde donde se pueden tener grandes vistas del entorno. Supone un espacio característico que a la vez satisface las necesidades del programa.
Distribuye increíblemente la luz a toda la casa. Las paredes de vidrio del salón y otros cuartos de la casa se abren hacia el jardín colgante, de modo que el sol accede por todas partes hasta el mismo corazón de la casa.
En la imagen de este espacio se puede destacar la transparencia. Es un lugar desde el cual se puede contemplar serenamente la arquitectura del edificio. El volumen transparente de la sala se muestra a través de su inmensa pared vidriada. A la izquierda, destacan las vistas a través de la ventana corrida, que se funden en el verdor que delimita el lugar. En contraste con una construcción de líneas rectas aparecen las curvas y contracurvas del solario que se abre hacia el cielo.
Una mesa de hormigón, que apoya en uno de los pilotis del jardín colgante, es uno de los elementos que caracterizan la imagen de este espacio. Además, en el piso, plantas y tiras de césped surgen entre las juntas del pavimento, enfatizando que este lugar se diseñó como un jardín.
El solario es el punto donde culmina el recorrido que sugiere la rampa. Es otro de los elementos clave de la villa. El carácter orgánico de algunos elementos del solario contrasta con la imagen regular que ofrecen otros espacios del proyecto. actúa como una atalaya desde la que se obtienen interesantes vistas: por una parte vistas de la arquitectura de la casa y por otro lado vistas controladas a través de sus propias paredes. Así, dirigiendo la mirada hacia abajo, vemos la zona donde tiene lugar la vida de los Savoye, mientras que, si continuamos ascendiendo a lo más alto de la rampa, nos topamos con una apertura rectangular, agujereada en la pared del solario, que enmarca una panorámica sobre el río.
La Villa Savoye se percibe, con sus pilotis, apoyada en el centro del claro. Esto se entiende al hacer una lectura de los volúmenes y de sus apoyos. Gracias a esto, la casa no altera las condiciones del terreno.
El sistema estructural de la villa es a base de pórticos de hormigón armado. Esto es consecuencia de la investigación llevada a cabo con la propuesta dominó, donde aparecía un sistema estructural de hormigón armado basado en la utilización del pilar y la losa.
Esta propuesta dominó, anticipaba ya lo que sería la planta libre e introducía la idea del sistema estándar de piezas prefabricadas, la construcción en serie y, en consecuencia, la vivienda económica. Pero este es otro asunto.
Volviendo a nuestro caso, ese conjunto de soportes que, en la villa Savoye, transmiten las cargas al terreno, conforma una retícula. En realidad, esta retícula se desdobla para adaptarse a la rampa, espina dorsal de la circulación en el proyecto.
El volumen blanco, abstracto, contiene el espacio en el cual se desarrolla la vida de los Savoye. Es una pieza que caracteriza la corporeidad del conjunto, mostrándose como una caja soportada por pilotis.
Sin embargo, no podemos hablar de esa caja blanca como un cuerpo tosco, pesado. Es decir, aunque la caja apoya en los pilotis, aparece una importante rasgadura horizontal que elimina esa idea de pesadez.
Esta ventana corrida solo es posible gracias a la utilización de materiales como el hormigón armado y al desarrollo de nuevas técnicas constructivas para la aplicación de este material. Así, la posibilidad de trabajar a flexión que ofrece el hormigón armado permite la creación de voladizos. Retranquear la estructura de la fachada implica la liberación de esta última, permitiendo la creación de esas fenêtre longuer.
El espacio destinado a los sirvientes está tratado de una forma diferente, casi desmaterializado por su transparencia. Al estar situado, rehundido bajo la caja representativa, queda en sombra. Ayuda así al cuerpo principal a leerse como un volumen puro. Además, se produce un cambio en el cromatismo, lo que favorece el discernimiento de los volúmenes y los pesos.
Si analizamos el dibujo de Le Corbusier “Las cuatro composiciones”, vemos como, en la villa Savoye, se funde la pureza de volumen que adoptó el arquitecto para proyectos como la villa Stein (Garches), con la libertad de composición en planta de proyectos como la villa Baizean (Cartago). Y es que, en la villa Savoie, Los muros, elementos que definen distintos ámbitos dentro de la vivienda, son independientes de la estructura.
Vamos a tener en cuenta, a la hora de analizar la forma espacial de la villa Savoye dos redes de movimiento.
Por un lado aislaremos las piezas que soportan el movimiento, reconoceremos su forma y las pondremos en relación. Nos detendremos en el análisis del salón y el jardín colgado al considerarlos como estancias principales.
Por otro lado, incorporaremos en el análisis la actividad, de la cual dependerá la forma espacial. En ningún caso debemos olvidar que la casa es concebida como residencia de fin de semana de la familia Savoye, puesto que como indica Frankl, las personas forman parte de la arquitectura, a diferencia de la pintura y la escultura, en la arquitectura uno no se encuentra delante, sino dentro.
Dentro del ritual de acceso que propone Le Corbusier para acceder a la villa Savoye, una vez atravesado el anillo boscoso y alcanzado el claro donde se dispone la villa, encontramos diversas entradas.
Por un lado, aparecen dos pequeños accesos laterales. Son accesos de carácter secundario y nos llevan los apartamentos del servicio.
Por otro lado vemos un nuevo acceso lateral que recae en el vestíbulo. No se trata tampoco del acceso principal, pues nos lleva al ámbito de la escalera de caracol, que como ya veremos queda asociada a un movimiento más relacionado con el uso que con la vivencia del espacio.
Los accesos principales son, sin lugar a dudas, el que incide frontalmente al vestíbulo y, por supuesto, el acceso rodado por el que tanto se interesa Le Corbusier en éste y otros proyectos. En ambos casos entramos en el eje articulador de la casa, donde se encuentra la otra pieza que recoge el movimiento vertical de la vivienda, la rampa.
Las dos piezas que soportan el movimiento vertical en el edificio son la rampa y la escalera. Funcionan como eje vertebrador alrededor del cual se articulan todas las piezas. Son dos piezas con un carácter muy diferente.
Por un lado tenemos la escalera, la cual queda ligada a espacios menos representativos, sirviendo al sótano, a la cocina... en definitiva, a espacios de servicio. La escalera, de caracol, comunica directamente las distintas plantas sin mantener prácticamente ninguna relación con otros espacios (salvo algunas visuales a través de pequeñas aberturas). Es una pieza que se cierra en sí misma, atravesando el vestíbulo y el distribuidor y alcanzando el solario. Podemos decir que tiene un carácter introvertido. Se trata de un órgano vertical puro que se inserta libremente en la composición horizontal.
Por otro lado aparece la rampa. Ésta queda asociada a los espacios principales: salón, terraza, cubierta... Supone una ascensión tranquila, suave. Es una ascensión ceremonial que nos lleva hasta el solario a través de espacios cubiertos y descubiertos. Comunica los distintos espacios estableciendo diversas relaciones (visuales entre los corredores y la terraza...). La rampa sí la podemos asociar con la vivencia del espacio. Se trata de una pieza hecha para disfrutar del movimiento, una pieza que acerca a la villa a la arquitectura árabe, arquitectura que se aprecia precisamente a partir del movimiento. Para poder entender la vivienda ha de ser recorrida.
El propio Le Corbusier indica: “Una rampa proporciona una ascensión gradual, creando sensaciones totalmente diferentes a las que se sienten al subir escalones. Una escalera separa un suelo de otro, una rampa los une."
Vamos a centrar ahora nuestro análisis en el salón y el jardín colgado, piezas que consideramos como las estancias más significativas.
EL SALÓN
De forma rectangular, tiene una superficie de 86m2 (14.25m de longitud y 6m de anchura). Puede accederse el por tres entradas: el distribuidor, el jardín colgado y la despensa.
El acceso principal al salón se produce desde el distribuidor que aparece en planta primera. Este distribuidor queda servido por las dos piezas que recogen el movimiento vertical del proyecto. Principalmente entraríamos al salón recorriendo antes la rampa, puesto que la escalera de caracol queda, como hemos dicho, más asociada a espacios secundarios de la vivienda.
Una vez dentro del salón, los soportes quedan totalmente perfilados modulando el espacio. Podemos leer hasta tres módulos. Las vigas de cuelgue que aparecen en el techo nos ayudan a leer este tema de la modulación, percibiéndose como pequeñas costillas dentro de la estancia.
En la cara sur, una ventana corrida recorre todo el salón de uno a otro extremo. Los soportes aparecen aquí separados del cerramiento, lo que da a la rasgadura horizontal una mayor continuidad en fachada.
La cara norte es la que contiene el acceso desde el distribuidor. En esta, uno de los módulos es opaco mientras que los otros dos quedan cerrados por una cristalera de suelo a techo. Un enorme tablero vidriado de 9.20 x 3.11 m y compuesto de dos marcos corredizos. A través de la cristalera, el salón se relaciona con el jardín colgado. En este caso, los soportes se enrasan con la superficie de vidrio.
A oeste, el límite es un plano opaco con una pequeña puerta que lleva a la cocina. De color rosado, es el límite de esta estancia con la zona de servicio.
A este aparece de nuevo la fênetre longer. En este caso la rasgadura no ocupa toda la cara sino que para a la altura de los soportes retirados de la cara sur. Así, las fachadas sur y este son diferentes. Este límite, situado frente al anterior, es de azul palido.
El suelo se muestra como una superficie uniforme y continua. Se muestra simplemente como un plano que contrasta con el techo que, como ya hemos indicado, aparece continuamente modulado por las costillas de hormigón.
El mobiliario que indicó Le Corbusier definía cuatro ámbitos de uso dentro del salón:
Por un lado, cerca de la despensa, el proyecto propuso una zona de comedor.
Por otro lado, junto a la cristalera de la cara norte se proyectó una zona de relación y lectura.
Alrededor de una chimenea central, que humaniza el espacio, Le Corbusier trabajó una zona de estar.
Por último, una zona de juegos fue propuesta bajo las rasgaduras de los límites que conforman fachada.
Los muebles burgueses elegidos por los Savoye difieren en gran medida del mobiliario diseñado por Le Corbusier, Pierre Jeanneret y Charlotte Perriand en 1929. Al parecer, el mobiliario proyectado, no sedujo a los dueños de la villa.
Por el día, este espacio queda bañado de luz solar gracias a las rasgaduras y, sobretodo, a esa relación con el jardín. Por la noche, la habitación es iluminada por una larga luminaria colgante de acero niquelado.
EL JARDÍN COLGADO:
Al jardín se puede acceder desde el distribuidor, desde el salón y desde el gabinete. Es una pieza que baña de luz espacios de tanta relevancia como el salón o la rampa. Posee una envolvente más irregular que el salón.
En lo que a sus límites se refiere, la cara sur está conformada por la vidriera que la comunica con el salón.
La cara este continúa con la rasgadura que procedía del salón. Esta fenêtre longer atraviesa la zona descubierta de la terraza sin llegar al otro extremo. Los pilares aparecen enrasados en fachada.
La cara oeste es tangente a la rampa. El módulo que queda cubierto comunica con la zona de noche de la vivienda.
El límite norte es, en su parte descubierta, un macizo en el que aparece un vano cuadrado. En su parte cubierta, vemos de nuevo una rasgadura de uno a otro extremo que forma parte de la fachada.
Parte de la terraza se abre al cielo, permitiendo vistas del solario. Otra parte queda cubierta creando un ámbito más resguardado.
En la terraza, el suelo tiene la apariencia de una malla. Esto es debido al césped que crece en las juntas del pavimento. Dentro de la terraza aparecen dos grandes jardineras. Así, se manifiesta la idea de Le Corbusier de recuperar el jardín en la zona superior de la casa.
Junto a la rasgadura de la cara este aparece una mesa que, empotrada en uno de los pilotis vuela, desafiando a la gravedad. Entorno a esta mesa podemos leer un espacio de relación y esparcimiento.
La rampa, ahora ya totalmente descubierta, continúa su tranquila ascensión en el ámbito del jardín colgado hasta alcanzar el solario.



















































































































Comentarios
Publicar un comentario